Дизайн проект дома «Бабочка» 348м² — портфолио бюро ARXY
8 (495) 105-67-66 info@arxy.ru

Россия, Москва, набережная
Академика Туполева 15

Оставаясь на сайте, вы подтверждаете свое согласие на cбор и хранение персональных данных. Полный текст согласия по ссылке

Фото

Дизайн проект дома «Бабочка»

Команда проекта

Площадь

348 м²

Стоимость реализации

От 87 000 000 руб.

Описание проекта

Современный интерьер выполнен в светлой, уютной палитре с акцентом на натуральные материалы и гармоничное сочетание дерева, камня и мягких тканей. Пространство объединяет все помещения, обеспечивая комфорт и функциональность для повседневной жизни и встреч с гостями. Большие окна наполняют помещение естественным светом, создавая атмосферу легкости и спокойствия

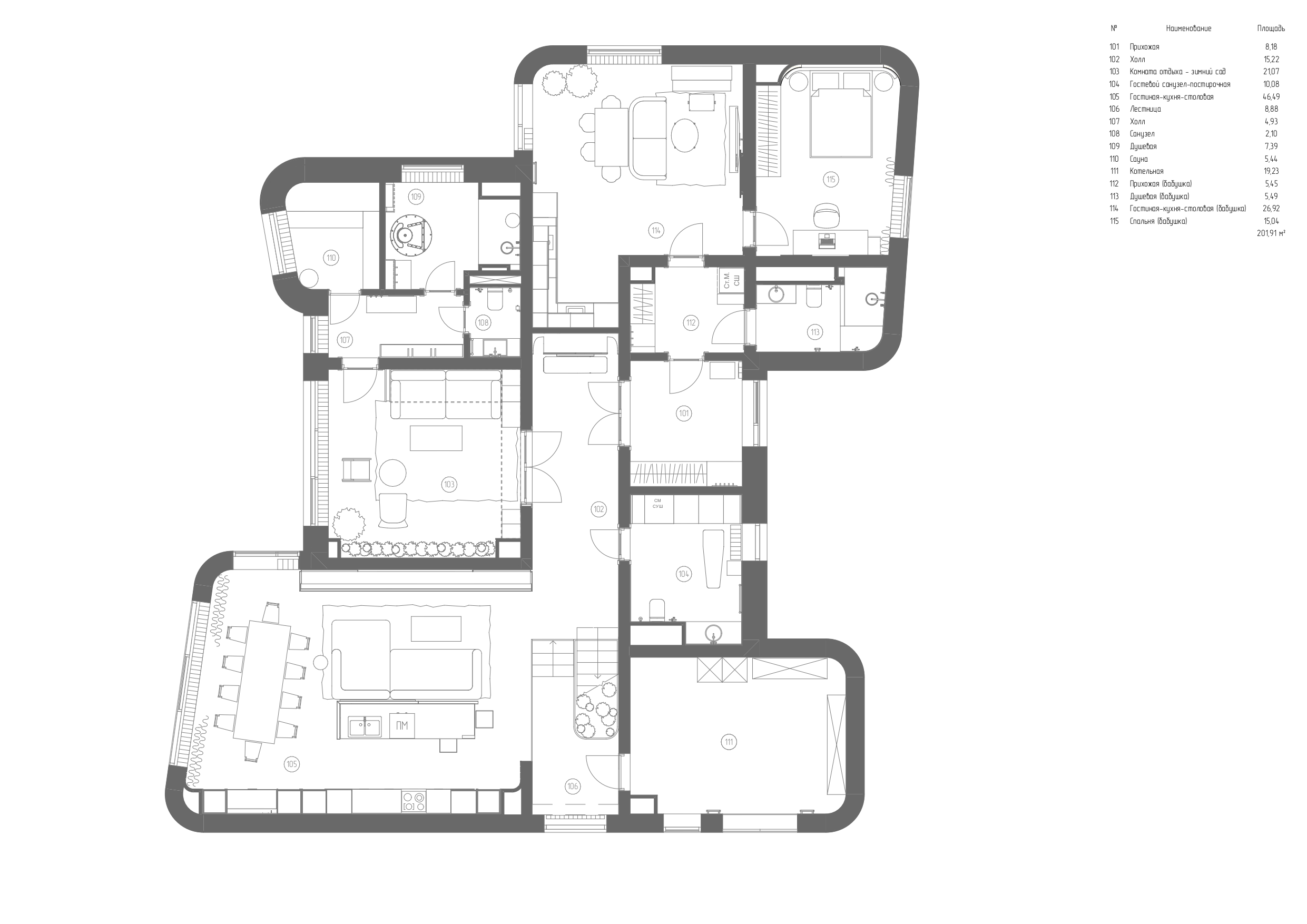
Планировка 1 этажа Фото
Планировка 2 этажа Фото

/ Оставьте заявку Мы проконсультируем и поможем решить вашу задачу

Оставьте свои контакты, наш специалист свяжется с вами


    Фото