Дизайн коттеджа «Современный Резонанс» 714м² — портфолио бюро ARXY
8 (495) 105-67-66 info@arxy.ru

Россия, Москва, набережная
Академика Туполева 15

Оставаясь на сайте, вы подтверждаете свое согласие на cбор и хранение персональных данных. Полный текст согласия по ссылке

Фото

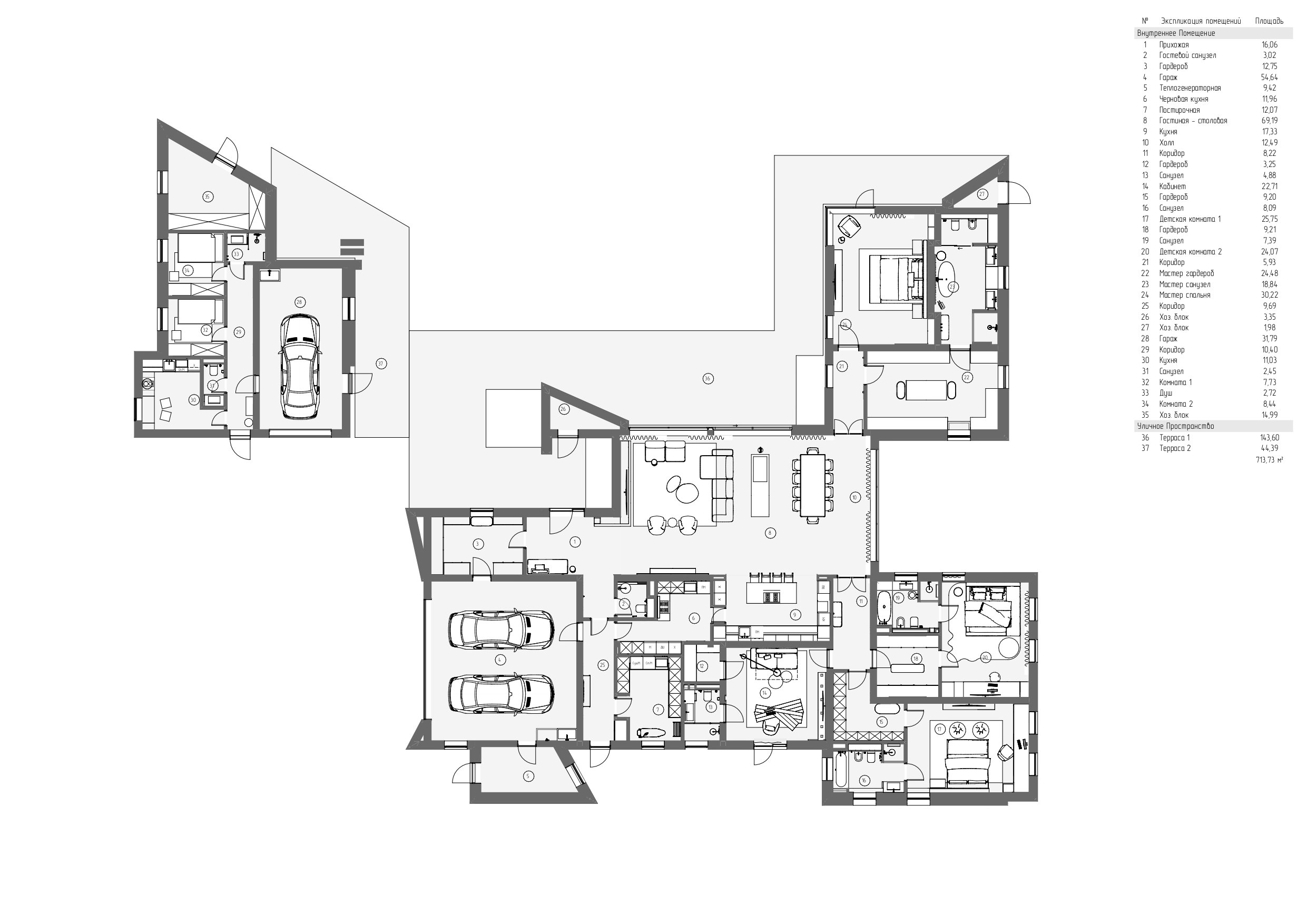
Дизайн коттеджа «Современный Резонанс»

Команда проекта

Площадь

714 м²

Стоимость реализации

От 232 000 000 руб.

/ Оставьте заявку Мы проконсультируем и поможем решить вашу задачу

Оставьте свои контакты, наш специалист свяжется с вами


    Фото