- Главная
- Проекты
- Дизайн интерьеров
-
Дизайн квартиры в стиле современная классика
Дизайн квартиры в стиле современная классика
Сопутствующие услуги
- Элитный дизайн интерьера квартиры Готовые дизайн-проекты позволяют получить отличный план для проведения ремонта. Профессионалы своего дела продумывают все — от планировки коммуникаций до расстановки мебели в помещении. Мастера компании «ARXY» работают по индивидуальным заказам. Все решения воплощают в себе сочетание стиля, вкусовых предпочтений клиента и современных оформлений.
- Дизайн проект квартиры под ключ
- Дизайн помещений
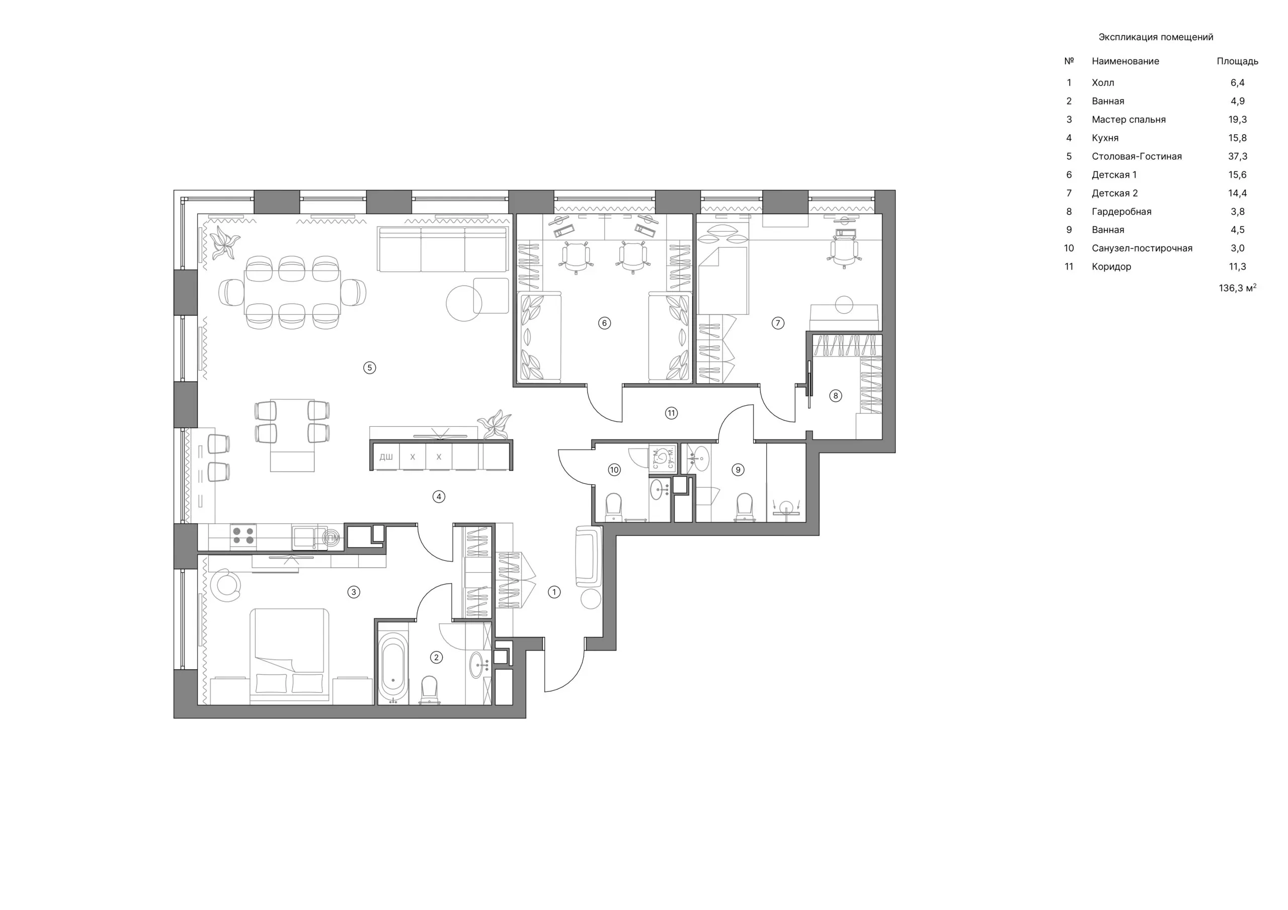
Классика во всех ее проявлениях – это бессмертный стиль, над которым не властно время. Приобретая новые черты, она все так же остается эталоном элегантности, признаком сдержанной роскоши. Ведущие дизайнеры строительной компании ARXY Алена Талянина и Светлана Федорова под руководством главного архитектора Дмитрия Прасолова разработали дизайн квартиры в стиле современная классика в одном из элитных жилых комплексов Москвы по заказу нашей клиентки Александры.
Пустые стены – простор для творчества
Проектирование дизайна в новостройках – это рай для художника. Ведь создать нечто необычное с чистого листа всегда увлекательно. В данном случае полотном выступила трехкомнатная квартира в одной из новостроек ЖК «Вест Гарден». Так как неоклассический интерьер подразумевает умелое комбинирование классики и модерна, отделка помещений основывалась на симметрии, сочетании строгих форм и плавных линий, наличии арок. Из двух основных цветовых решений – строгой холодности и уютной теплоты – был выбран второй вариант, более близкий заказчице.
На этапе планирования и разработки эскизов было воплощено множество идей, характерных для выбранного стиля:
- Акцент на спокойных, пастельных тонах в отделке стен с добавлением контрастных бордовых элементов в виде мебели, декоративных подушек, панно, картин, штор. В оформлении гостиной, помимо прочего, яркой деталью выступил шкаф-витрина, а в детской – стеклопакеты в темной раме.
- Высокие плинтусы, молдинги с вензелями, фактурными изображениями и более лаконичные, строгие, без лишних дополнений.
- Беспроигрышное сочетание мрамора, золотистого декора и белоснежной сантехники в ванной комнате.
- Симметричное расположение предметов в детской – стилистическое решение, которое не только идеально отражает концепцию, но и является лучшим вариантом для двух маленьких принцесс.
Центром всей композиции выступает гостиная. В ее оформлении сделан акцент на контраст пастельных и более темных, благородных тонов. Здесь выполнено условное зонирование на столовую и зону отдыха, центром которой выступает декоративный камин с мраморной отделкой. Уютная мягкая мебель, длинные плотные занавески в пол, панно с оригинальным зеркалом и множество источников освещения в виде торшеров, люстры и бра сделали эту комнату основой целостного художественного ансамбля.
Кессонные потолки и большие люстры стали неотъемлемой частью просторных помещений, тогда как дизайн прихожей – это максимальная лаконичность в комбинации с эргономикой и современными требованиями к минимальной загроможденности. В целом, в проекте удалось отобразить ту золотую середину, которая стоит между вычурной классикой и современным минимализмом. Ненавязчивость, наполненность квартиры светом и воздухом, но при этом большое внимание к деталям – это именно те аспекты, которые диктует нам неоклассика.
Для «ARXY» нет ничего невозможного
Придумать и построить, переделать или перепланировать, добавить красок, изменить ландшафт, вписать сооружение в общую картину местности – какие бы мысли не рождались в вашей голове, мы реализуем каждую из них. Почти 15 лет на рынке, более 500 успешных проектов, работа со знаменитостями и дружная команда профессионалов в своей сфере сделали возможным осуществление самых грандиозных замыслов и масштабных идей.
Мы не просто рисуем эскизы и составляем сметы. Мы находимся на одной волне с нашими клиентами, проводим интервью, изучаем бизнес-планы и внимательно анализируем пожелания и предпочтения. Архитектурное бюро ARXY – это место, где собрались самые смелые и талантливые художники, архитекторы, дизайнеры, чтобы «перевернуть» этот мир и приблизить любого из вас к реализации планов, достижению целей и исполнению самых заветных желаний.
/ Оставьте заявку Мы проконсультируем и поможем решить вашу задачу
Оставьте свои контакты, наш специалист свяжется с вами