- Главная
- Проекты
- Дизайн интерьеров
-
Дизайн маленького двухэтажного коттеджа
Дизайн маленького двухэтажного коттеджа
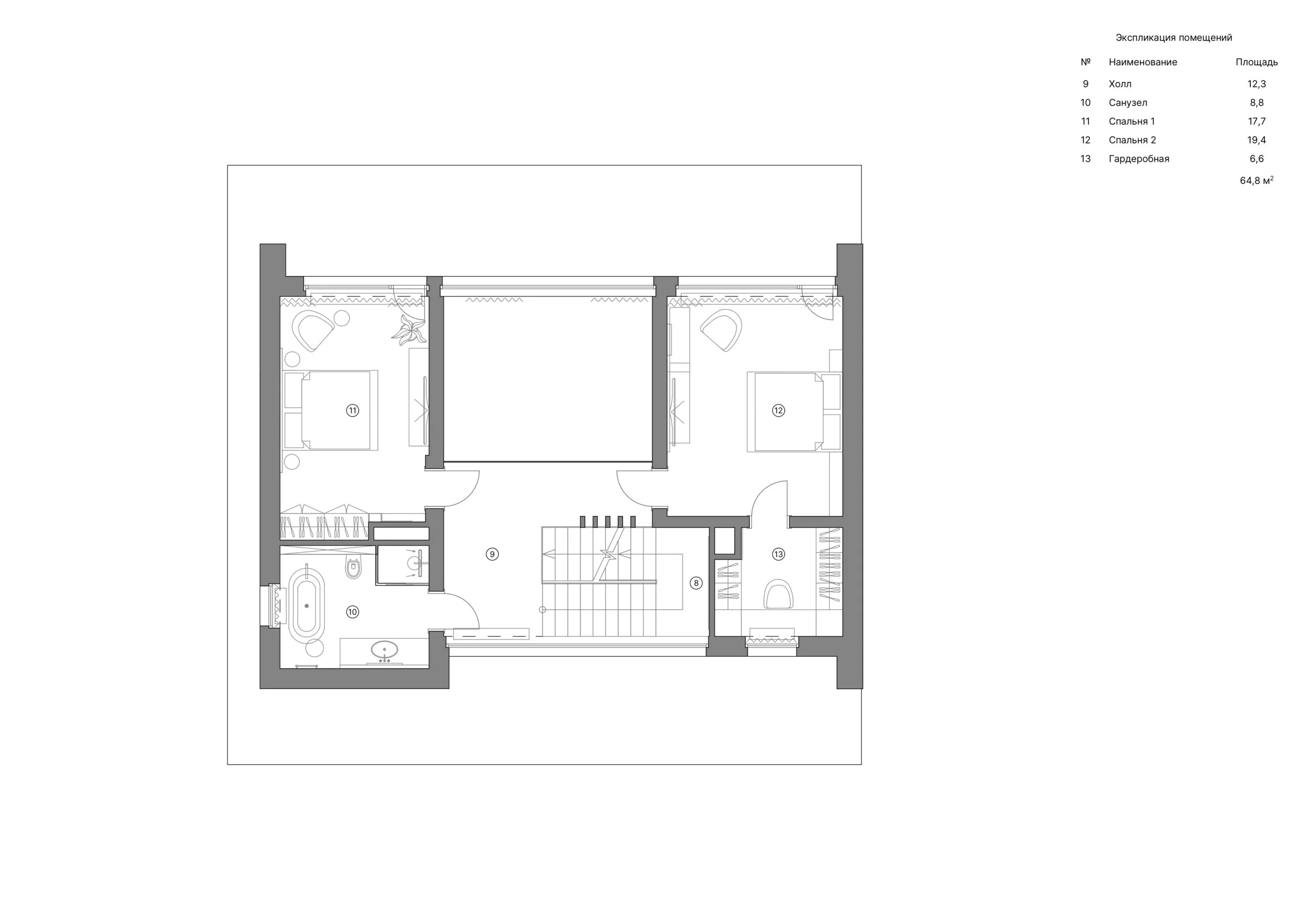
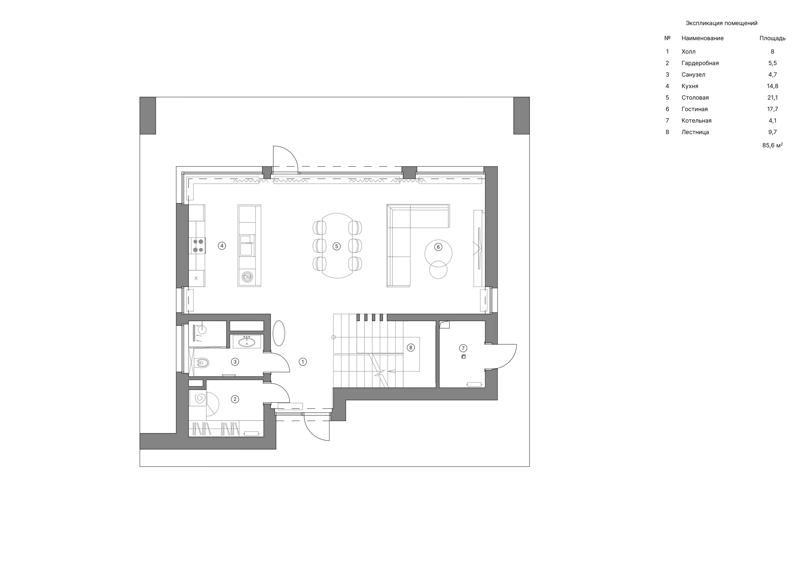
Задача
Разработать дизайн проект небольшого двухэтажного дома площадью 150 м²
Площадь
150 м²
Стоимость реализации
От 18 500 000 руб.
Дизайн должен был быть максимально рентабельным, должен нравиться большинству людей, поскольку дома строятся как коммерческий проект, под аренду. Дом в современном стиле с использованием интересных элементов. Оригинальная лестница — 1 марш монолитная конструкция в сочетании с деревом плавно переходящая в мебель. 2 марш идет легкая подвесная конструкция, что создает очень интересный современный эффект. Весь интерьер выполнен с использованием большого количества дерева.
Сопутствующие услуги
- Дизайн-проект интерьера коттеджа
- Строительство Процесс, при котором мы берем на себя все этапы и работы по возведению здания или сооружения, начиная от проектирования и заканчивая сдачей готового объекта заказчику. Этот подход освобождает вас от необходимости самостоятельно координировать различные этапы строительства, нанимать отдельных подрядчиков и контролировать выполнение работ.
- Проектная документация в строительстве Сделаем рабочую документацию. Инструкцию для строителей, как построить дом.
- Ремонт и отделка Комплексная услуга, которая включает в себя все этапы ремонта: от демонтажа до отделки. Наши специалисты подберут материалы и мебель, проведут работы по электрике, сантехнике, отделке стен и полов. Результатом нашей работы будет готовое помещение, которое соответствует всем требованиям заказчика и готово к использованию.
/ Оставьте заявку Мы проконсультируем и поможем решить вашу задачу
Оставьте свои контакты, наш специалист свяжется с вами