Дизайн проект квартиры в ЖК Вест Гарден 96м² — портфолио бюро ARXY
8 (495) 105-67-66 info@arxy.ru

Россия, Москва, набережная
Академика Туполева 15

Оставаясь на сайте, вы подтверждаете свое согласие на cбор и хранение персональных данных. Полный текст согласия по ссылке

Фото

Дизайн проект квартиры в ЖК Вест Гарден

Команда проекта

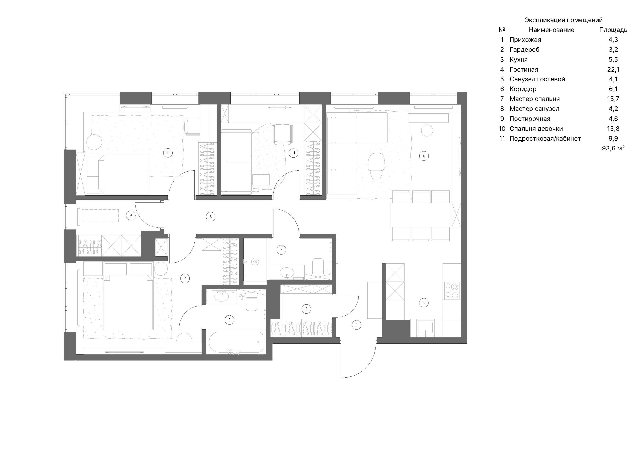
Площадь

96 м²

Стоимость реализации

От 19 000 000 руб.

Описание проекта

В нашем дизайн-проекте мы акцентируем внимание на уюте и комфорте, используя теплые оттенки в отделке интерьера — от шпона до покраски и цвета камня. Отражающие поверхности и вертикальные линии из латунных профилей придают легкость и визуально увеличивают пространство. Зеркальная стена в кухне создает эффект продолжения гостиной, добавляя сложности и простора. Текстиль в спокойных серых тонах с яркими акцентами оранжевого и зеленого позволяет легко менять настроение интерьера, просто обновив подушки или обивку пуфа.

/ Оставьте заявку Мы проконсультируем и поможем решить вашу задачу

Оставьте свои контакты, наш специалист свяжется с вами


    Фото