Дизайн таунхауса в современном стиле 481м² — портфолио бюро ARXY
8 (495) 105-67-66 info@arxy.ru

Россия, Москва, набережная
Академика Туполева 15

Оставаясь на сайте, вы подтверждаете свое согласие на cбор и хранение персональных данных. Полный текст согласия по ссылке

Фото

Дизайн таунхауса в современном стиле

Команда проекта

Задача

Продумать такой стиль, который мог понравиться любому человеку, так как интерьер и дом в целом создавался под дальнейшую продажу

Площадь

481 м²

Стоимость реализации

От 73 593 000 руб.

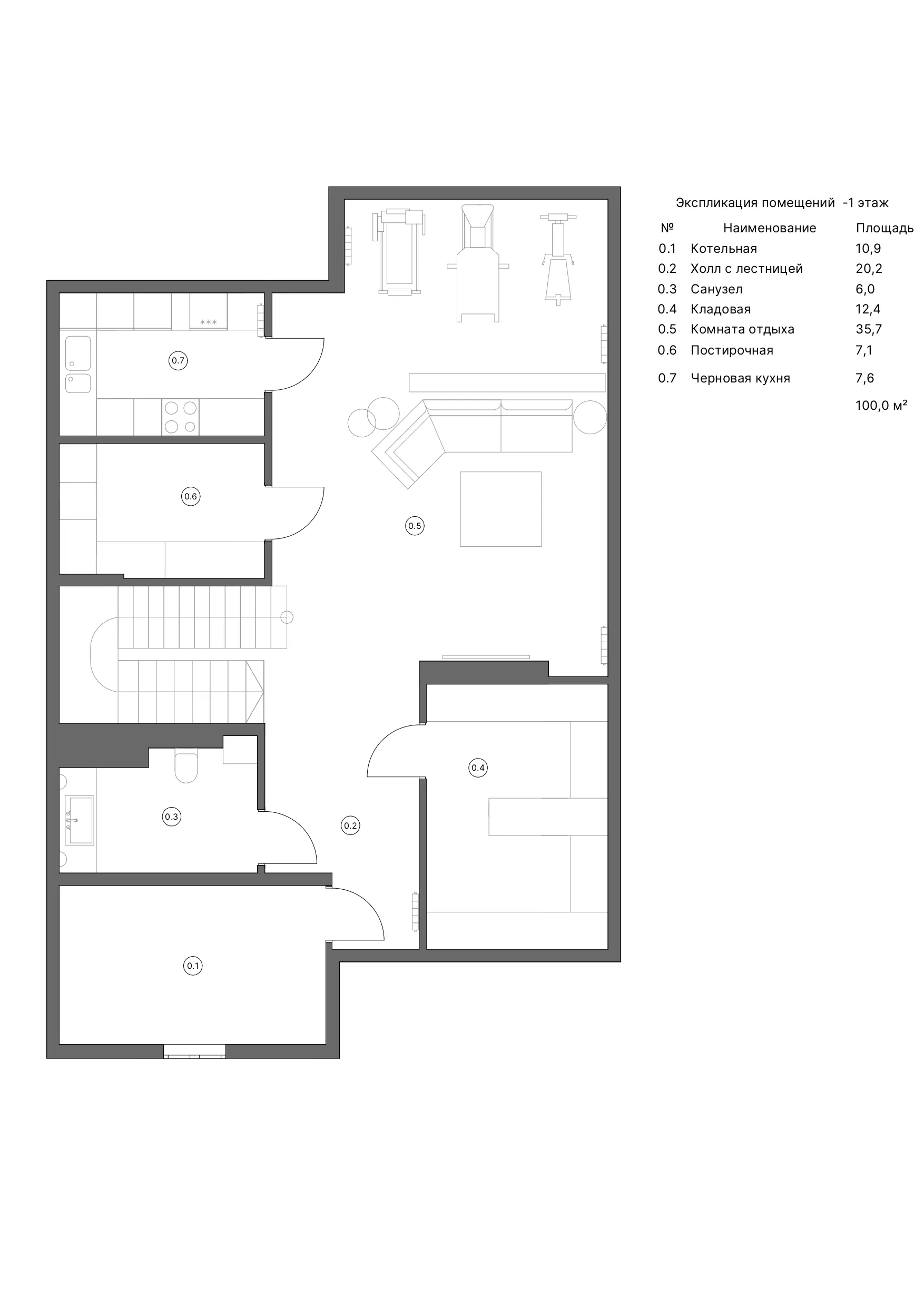
Планировка -1 этажа Фото
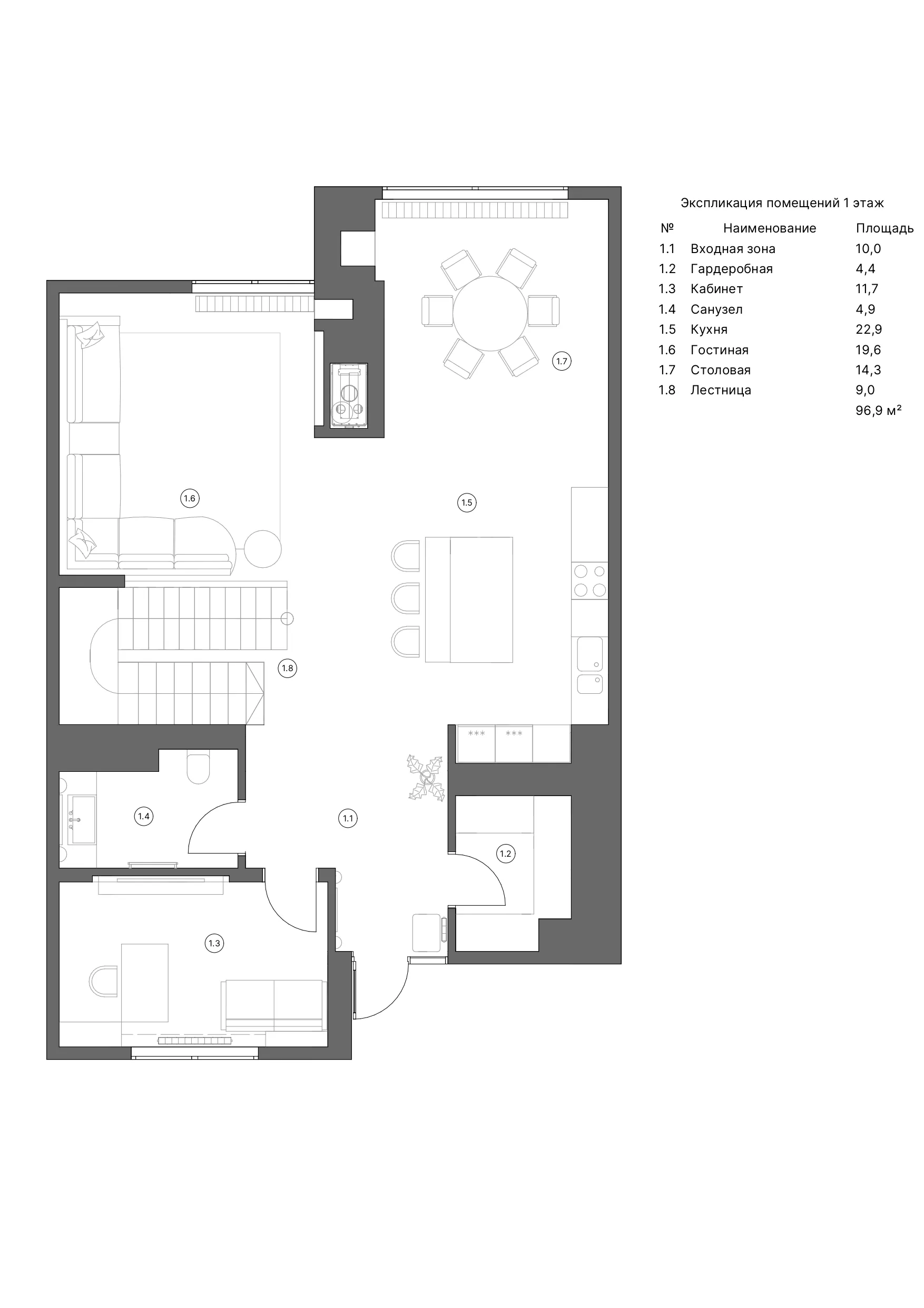
Планировка 1 этажа Фото
Планировка 2 этажа Фото
Планировка 3 этажа Фото

Описание проекта

Все комнаты в доме разработаны примерно в одинаковой стилистике, чтобы интерьер был универсальным и нравился всем, так как он рассчитывается на продажу. При этом каждую комнату сделали в разных цветовых решениях, и в каждой спальне имеется свой санузел и своя гардеробная. Сделали это для того, чтобы у будущих покупателей, будь это большая семья, у каждого члена семьи была возможность выбрать себе комнату, которая будет больше по душе, в которой будет комфортно находиться

/ Оставьте заявку Мы проконсультируем и поможем решить вашу задачу

Оставьте свои контакты, наш специалист свяжется с вами


    Фото