Horizon House 366м² — портфолио бюро ARXY
8 (495) 105-67-66 info@arxy.ru

Россия, Москва, набережная
Академика Туполева 15

Оставаясь на сайте, вы подтверждаете свое согласие на cбор и хранение персональных данных. Полный текст согласия по ссылке

Фото

Команда проекта

Площадь

366 м²

Стоимость реализации

От 58 560 000 руб.

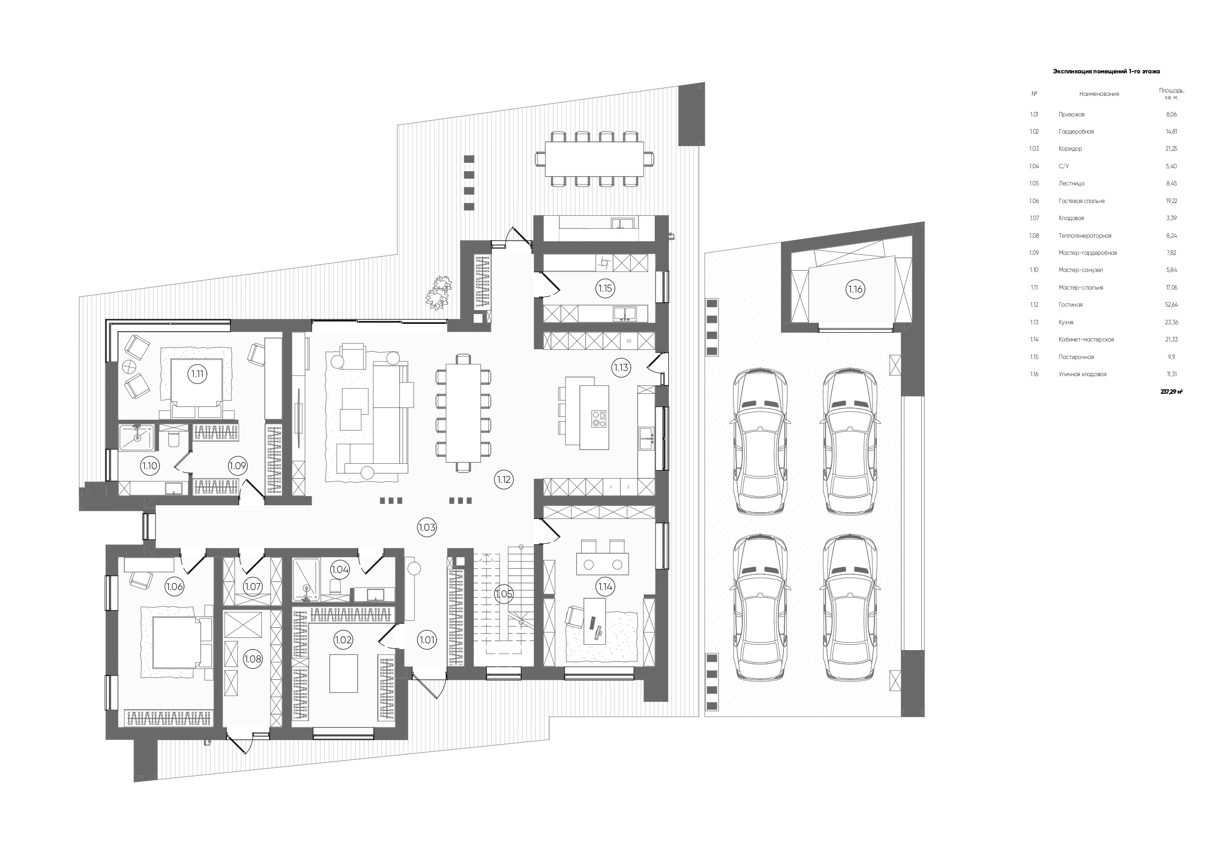
Планировка 1 этажа Фото
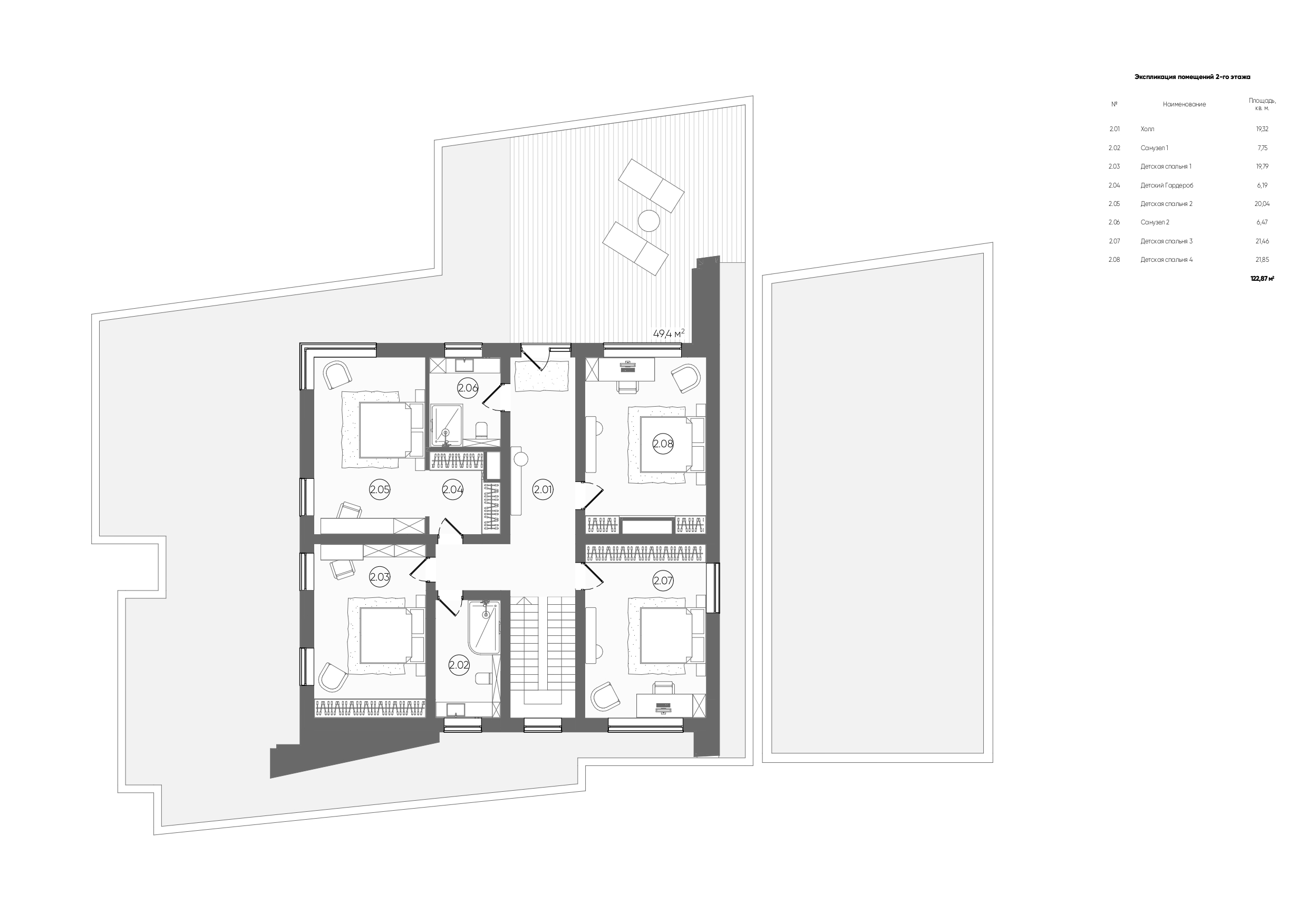
Планировка 2 этажа Фото

/ Оставьте заявку Мы проконсультируем и поможем решить вашу задачу

Оставьте свои контакты, наш специалист свяжется с вами


    Фото