Коттедж «Эскейп» 377м² — портфолио бюро ARXY
8 (495) 105-67-66 info@arxy.ru

Россия, Москва, набережная
Академика Туполева 15

Оставаясь на сайте, вы подтверждаете свое согласие на cбор и хранение персональных данных. Полный текст согласия по ссылке

Фото

Коттедж «Эскейп»

Команда проекта

Задача

Создать современный двухэтажный дом, который станет местом уединения и спокойствия, обеспечивая высокий уровень комфорта и функциональности. Дом должен быть интегрирован в окружающую природу и обеспечивать ощущение свободы и простора

Площадь

377 м²

Стоимость реализации

От 49 010 000 руб.

Описание проекта

Проект «Эскейп» представляет собой убежище от городской суеты, место, где можно найти гармонию и расслабление. Дом спроектирован таким образом, чтобы обеспечить максимальное взаимодействие с природой через большие панорамные окна и открытую планировку. Эстетика минимализма и использование натуральных материалов создают атмосферу тепла и уюта, а современные технологии обеспечивают энергоэффективность и экологичность

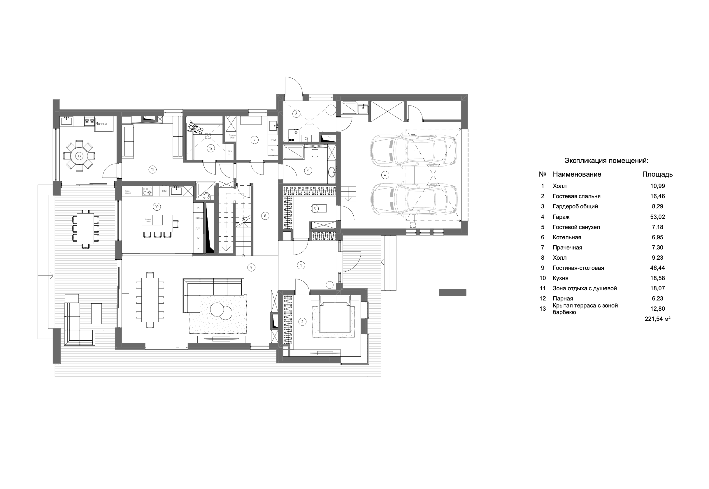
Планировка 1 этажа Фото
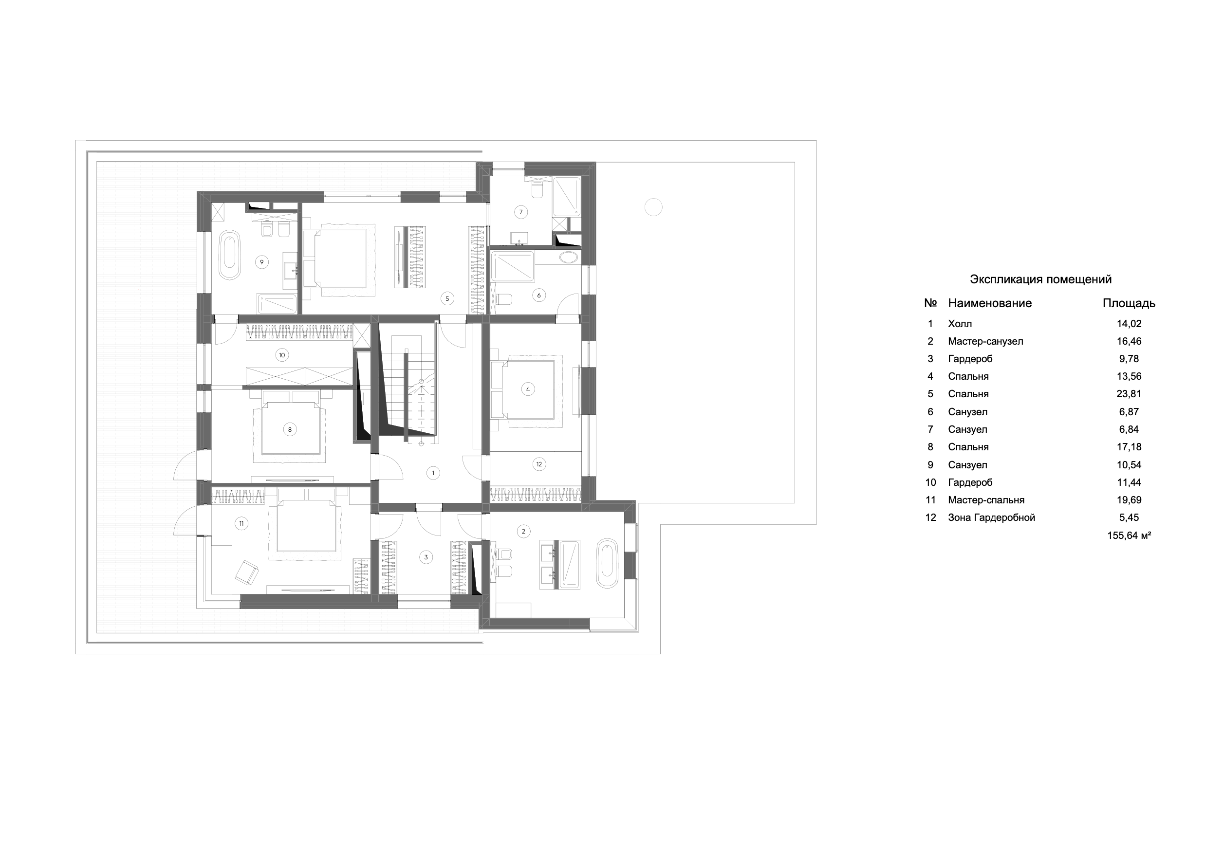
Планировка 2 этажа Фото

/ Оставьте заявку Мы проконсультируем и поможем решить вашу задачу

Оставьте свои контакты, наш специалист свяжется с вами


    Фото