Дом Бабочка 356м² — портфолио бюро ARXY
8 (495) 105-67-66 info@arxy.ru

Россия, Москва, набережная
Академика Туполева 15

Оставаясь на сайте, вы подтверждаете свое согласие на cбор и хранение персональных данных. Полный текст согласия по ссылке

Фото

Команда проекта

Площадь

356 м²

Стоимость реализации

От 46 280 000 руб.

Описание проекта

Архитектурный проект дома «Бабочка» воплощает элегантность и динамику в форме, напоминающей взмах крыльев бабочки. Скругленные линии создают гармоничное пространство, которое плавно вписывается в окружающий ландшафт. Конструкция из газоблока обеспечивает надежность и теплоизоляцию, а отделка фасадной штукатуркой и композитными панелями придает современный вид. Этот дом станет не только уютным убежищем, но и истинным произведением искусства.

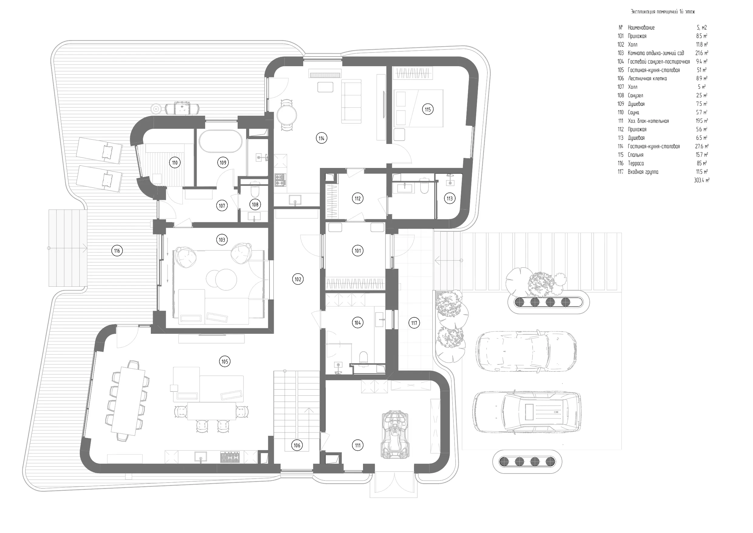
Планировка 1 этажа Фото
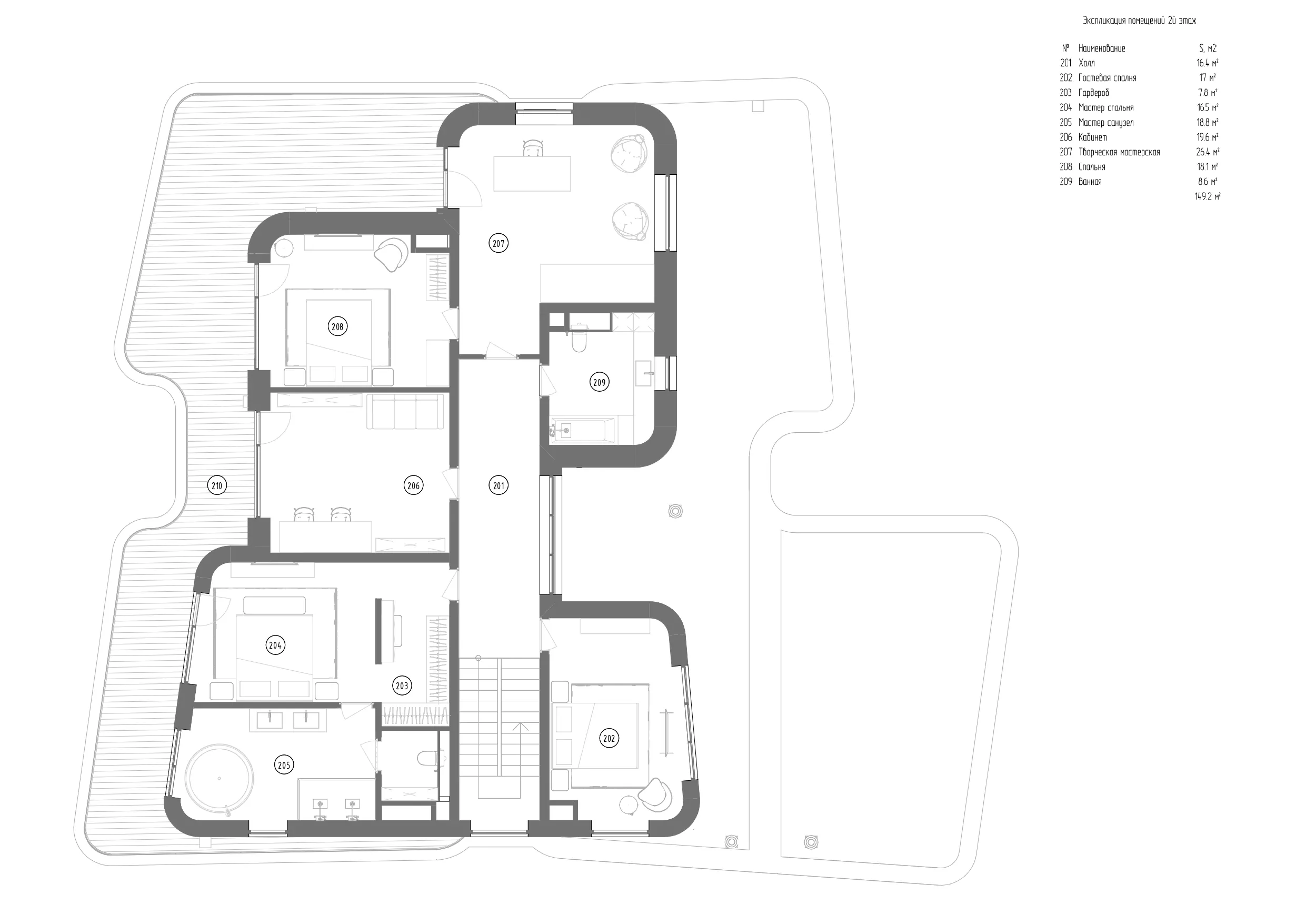
Планировка 2 этажа Фото

/ Оставьте заявку Мы проконсультируем и поможем решить вашу задачу

Оставьте свои контакты, наш специалист свяжется с вами

[contact-form-7 id="a49f100" title="Форма Оставьте заявку"]
Фото