Дом «Line» 1116м² — портфолио бюро ARXY
8 (495) 105-67-66 info@arxy.ru

Россия, Москва, набережная
Академика Туполева 15

Оставаясь на сайте, вы подтверждаете свое согласие на cбор и хранение персональных данных. Полный текст согласия по ссылке

Фото

Команда проекта

Площадь

1116 м²

Стоимость реализации

От 178 560 000 руб.

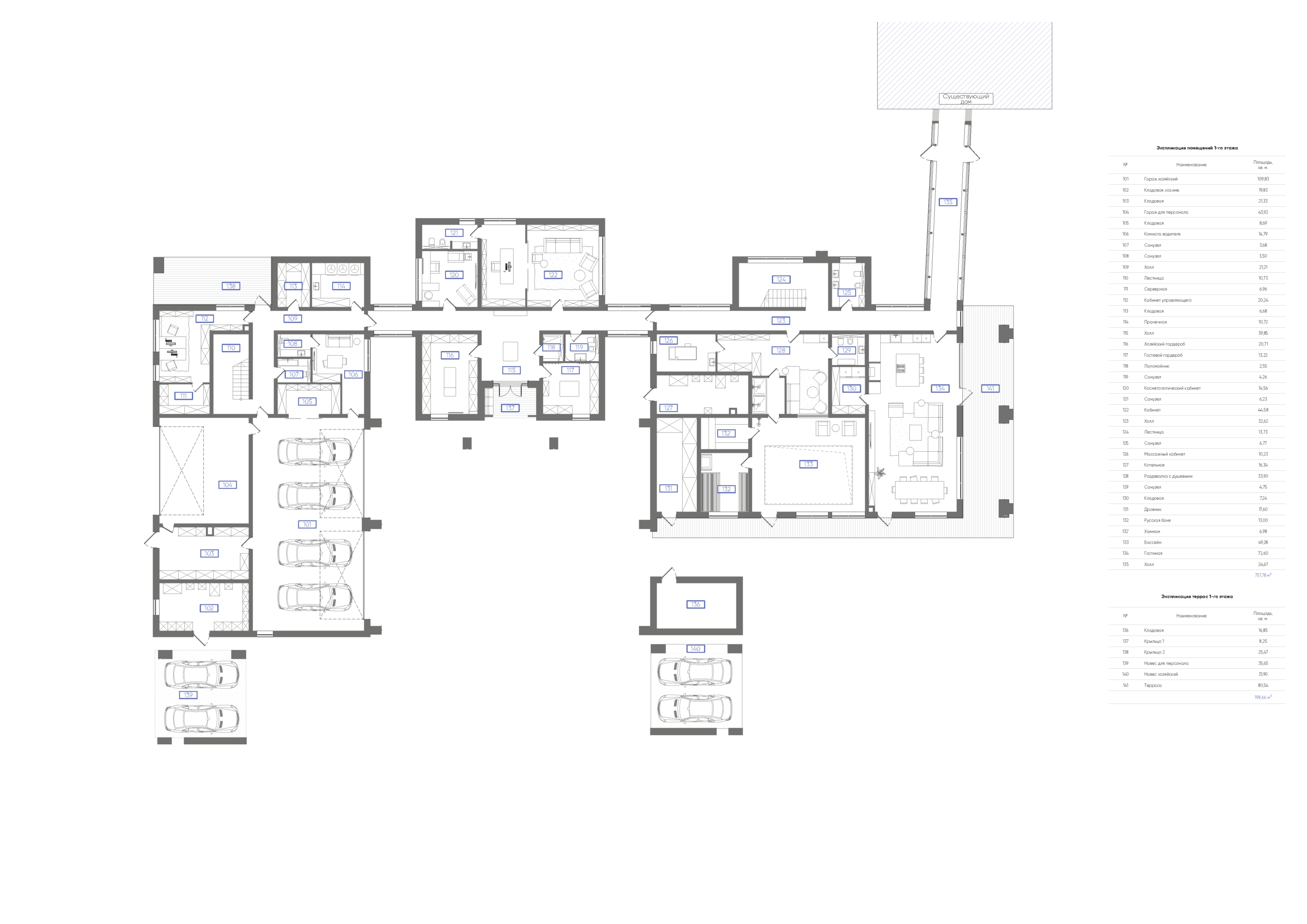
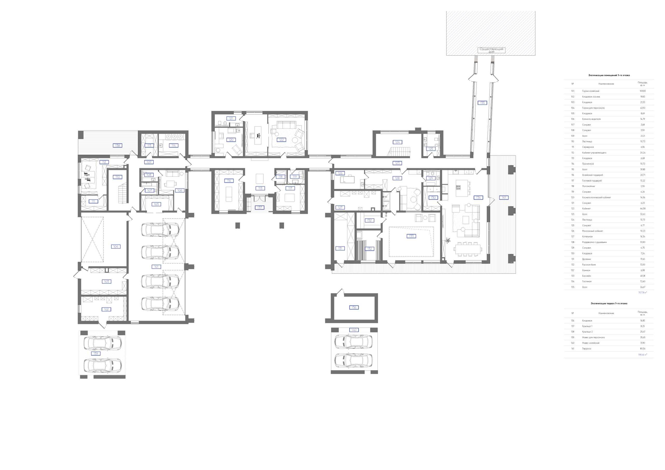
Планировка 1-го этажа Фото
Планировка 2-го этажа Фото

/ Оставьте заявку Мы проконсультируем и поможем решить вашу задачу

Оставьте свои контакты, наш специалист свяжется с вами

[contact-form-7 id="a49f100" title="Форма Оставьте заявку"]
Фото